FRONT DESIGN TALK

アルミに見えない高級感と重厚感を創造する
計算された研磨と塗装のバランス。

プラウド新虎通り|PROUD Shintoradori

2022年に竣工した「プラウド新虎通り」。新虎通りは数々の都市計画の対象となる、東京のシンボルストリートです。この街の様々な条件に適するよう、プラウド新虎通りには建物全体に工夫が施されています。

その中でも建物の顔となるエントランスにフロントのアルミ製品が使用されています。

当初、デザイナーの方の計画では、エントランス周囲の壁面緑化に合わせて、本物の生錆を活かした製品であるRusty.Rを使用する予定でした。しかしプラウド新虎通りは虎ノ門にある非常に高級なマンションであるため、些細な懸念も許されず、製品の採用判断に妥協はありません。Rusty.Rは、熟錆を促進してある程度初期錆を抑えてから納品するとはいえ、自然そのものの生きた錆である以上、擦れば多少手につき、錆汁が流出する可能性もゼロではないことから、人の往来が多いこの場所で使用することは難しいという結論に至りました。

そこでデザイナーの方と検討を重ねた結果、錆をモチーフにしながらも「錆風」ではない、全く新しい仕上を作ろうということになりました。この仕上の作成に当たって求められたのは、「錆にも、木材にも、石にも見えるが、素材であるアルミには見えない」ことでした。そのためには何よりも研磨と塗装のバランスが重要です。研磨が強すぎると金属感が増し、塗装が強すぎると斑感による表情の深みが消えてしまいます。これらの条件を満たすため多くの時間をかけてサンプルを作成し、やっとデザイナーの方も事業主の方もご満足いただける仕上が決まりました。

この仕上によりエントランスパネルはそれぞれに斑感が異なり、一枚一枚に個性が出ています。これを囲むように配置された壁面緑化は、様々な植物の組み合わせにより何色もの緑が折を成し、一日の中で昼と夜、一年の中で季節ごとに変化します。植物のどの表情にも調和し、もう一つの要件である「アルミには見えない」ことについても、十分な高級感と重厚感をもって達成しました。

新虎通りのエリアビジョンに寄り添い、多様性溢れる賑わった都市空間の名脇役として役割を果たし続けることができれば僥倖です。

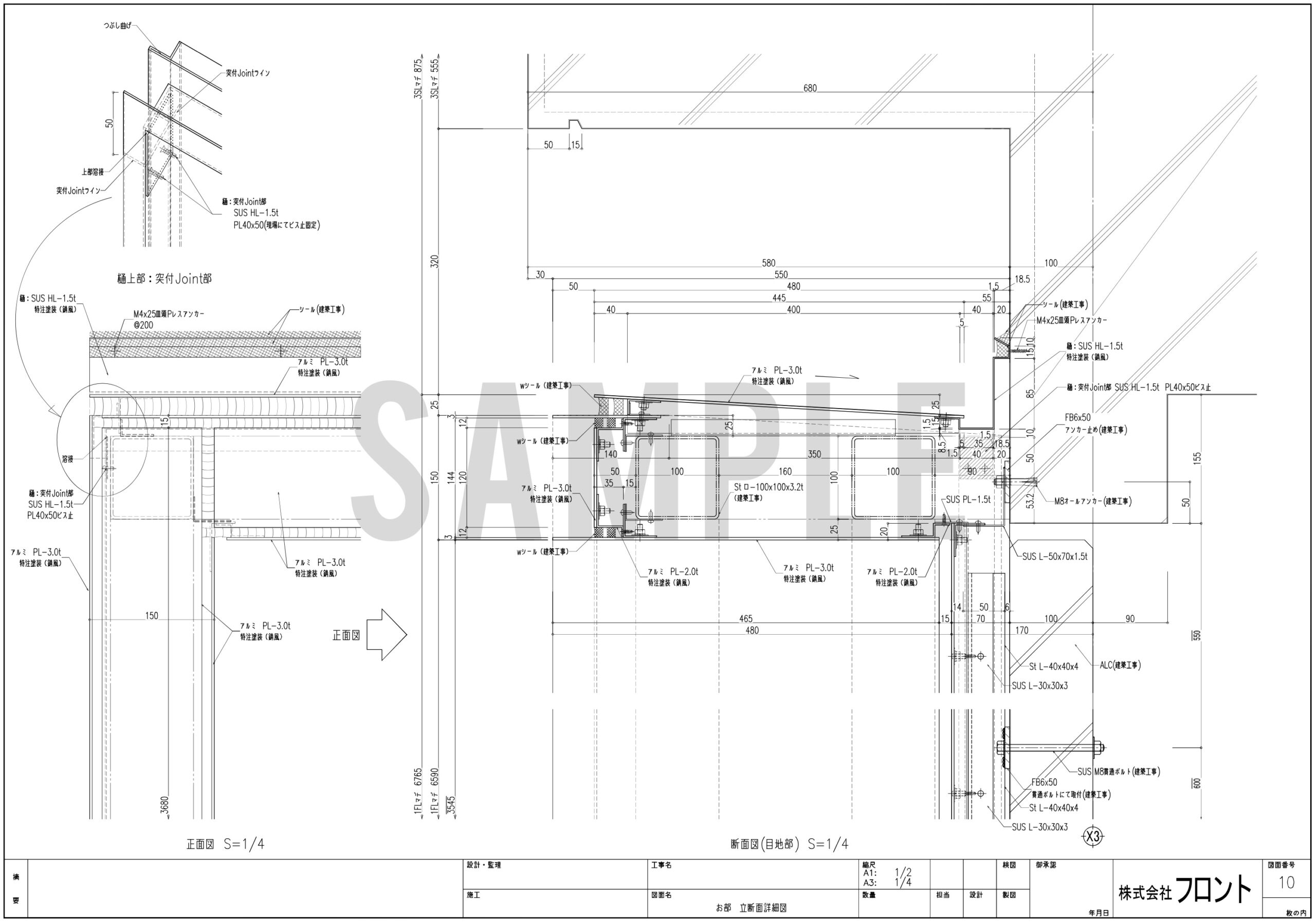
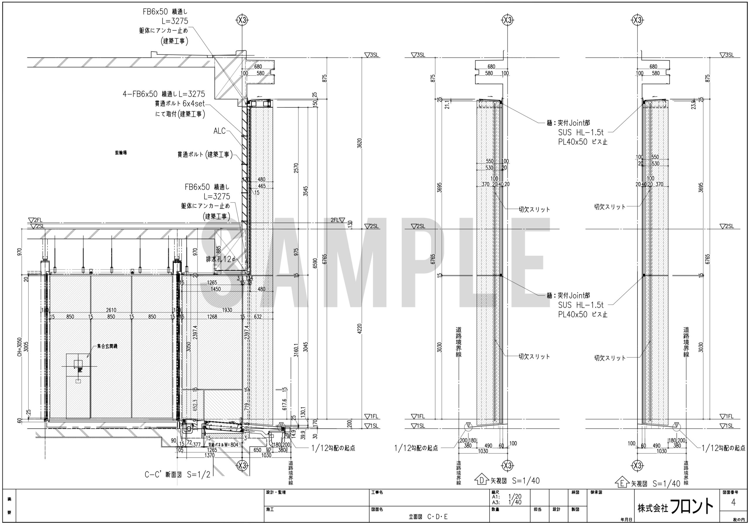
参考資料